The Cedar Creek
-
3BEDS
-
3BATHS
-
2,240SQ FT
-
2-CarGARAGE
-
STORIES
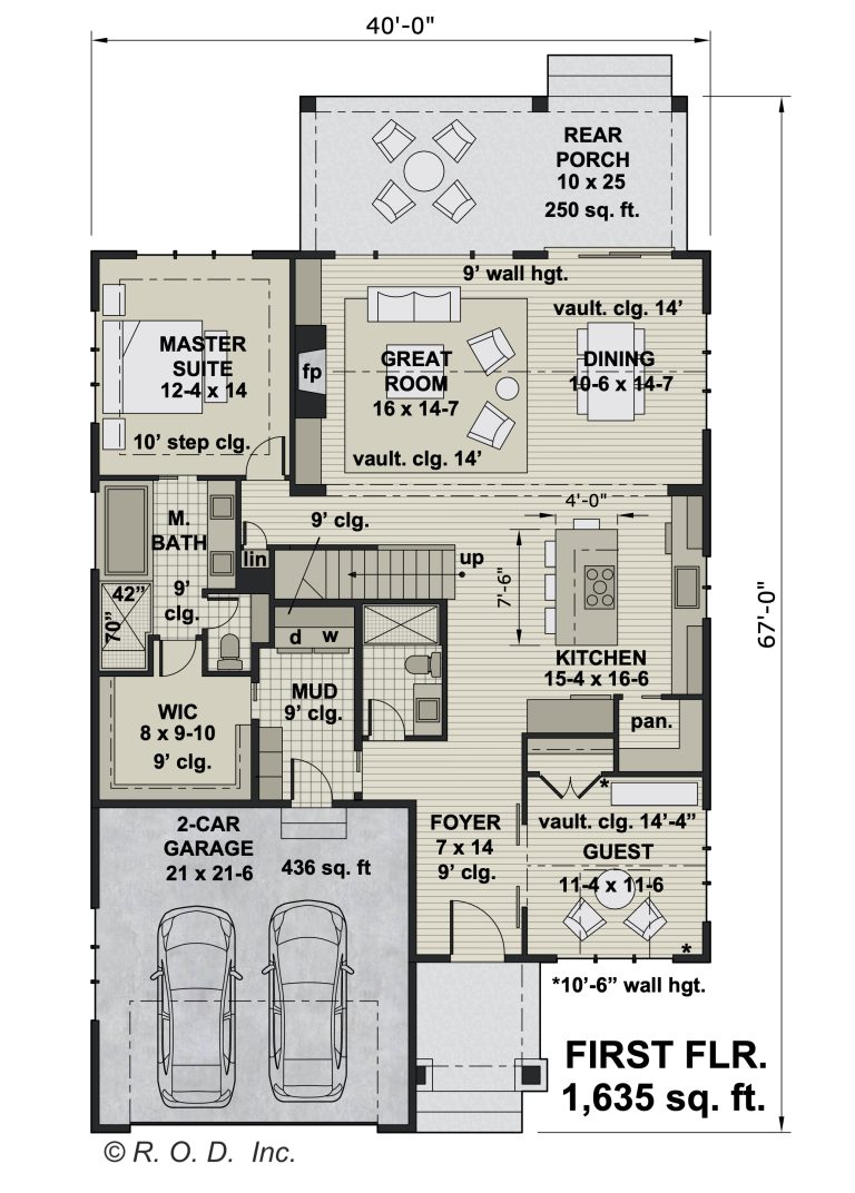
If you think the exterior of this home is impressive, wait until you see the interior! This stunning 2-story,2240 sq ft Farmhouse holds 3 bedrooms and 3 bathrooms, plus a 267 sq ft future bonus room over the2-car garage.From the charming covered front entryway, you’ll step into an elegant foyer with sight lines through tothe open living space that holds the kitchen, greatroom,and dining area. The spacious great roomfeatures a cozy fireplace flanked by built-ins and a14’ vaulted ceiling, making it a perfect space forentertaining friends and family, or just enjoying an intimate evening in.You’ll love preparing meals in your well-appointed kitchen featuring a largetwo-levelisland with built-inrange and seating for 4. Storage will never be an issue thanks to numerouscabinetsanda big walk-inpantry with built-in shelves and a pocket door.At the end of the day retire to your luxurious and comfortable master suite. The spacious masterbedroom has a 10’ step ceiling and windows on two walls. The master bathroom with dual vanities,private toilet area and separate soaking tub and shower, plus an expansive walk-in closet, with laundryaccess, complete the suite.Other features of this outstanding home include two additional bedroomson the upper level, one with awalk-in closet, and a generous office/guest bedroom with a vaulted ceiling and sliding barn doors on themain level. This home was designed with functionality, comfort and living in mind, and you’re sure tofeelit as soon as you walk in
























